◎ 廣東省知名商標 ◎ 國家建筑裝飾工程設計專項甲級 ◎ 建筑裝修裝飾工程專業承包壹級
歡迎訪問星藝裝飾南寧公司官網

















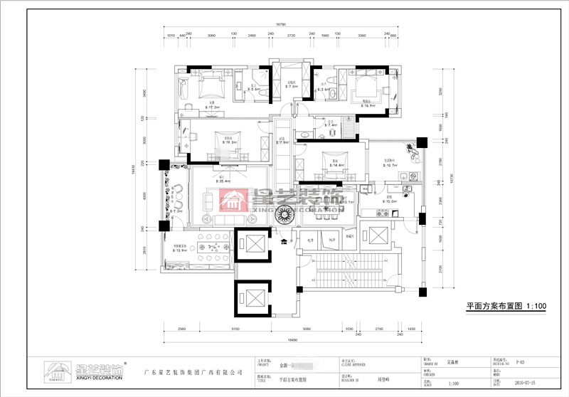
金源一品205平裝修案例設計說明:本案為金源一品大戶型平層,通過與業主前期溝通,針對本戶型在空間上的一些不足之處,我們進行了有針對性的局部改造。一個是入戶,過于直通,直對主臥大門。在對于私密性和中國傳統的風水習慣上都有所違背,因此我們在入戶出改造出入戶玄關和換鞋區域,這樣既能保證私密性的需求,又滿足了功能性的需求。其次是在于廚房的部位,由于原建筑廚房的面積比較有限,不能滿足業主日常生活的需要。因此,也對廚房面積進行了一定的擴充,從而滿足業主使用上的需求。
本案在風格定位時,定位為美式風格。美式風格家居如同美國獨立精神一般,講究的是通過生活經歷去積累自己對藝術的啟發及對品味的喜好,同時空間也盡量表現出華美、富麗、浪漫和舒適的氛圍。在設計上,我們減少雕花、弧形等裝飾,采用直線、純色封能體現美式風格的真諦。在茶室的設計上,因為是相對獨立的空間,我們跳開美式風格,采用了傳統中式的設計,體現出中式茶室的傳統韻味和業主的獨特品味。
金源一品97平裝修案例
榮和大地179平裝修案例
教育路3號單位房125平裝修案例
龍光玖瓏湖200平裝修案例
鳴翠谷300平裝修案例
招商境界215平裝修案例
合景天峻300平裝修案例
廣源大都會190平裝修案例
提交信息,試看
人氣:11105
請必須填寫正確信息,以便我們更好的為您服務!