◎ 廣東省知名商標 ◎ 國家建筑裝飾工程設計專項甲級 ◎ 建筑裝修裝飾工程專業承包壹級
歡迎訪問星藝裝飾南寧公司官網















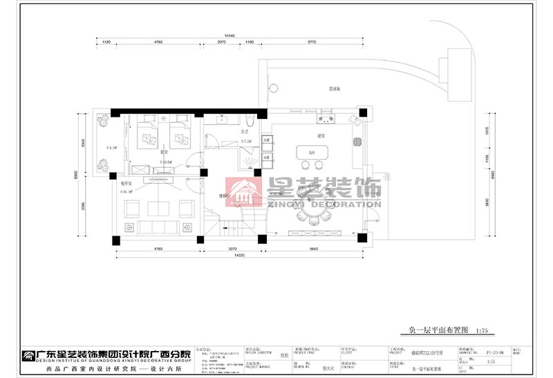
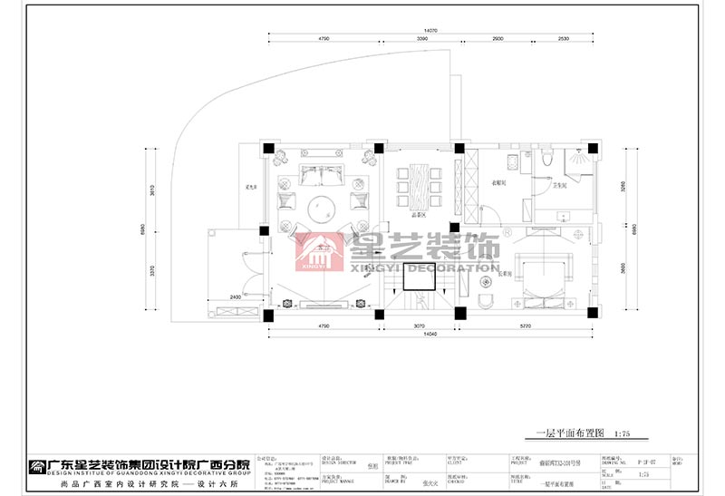
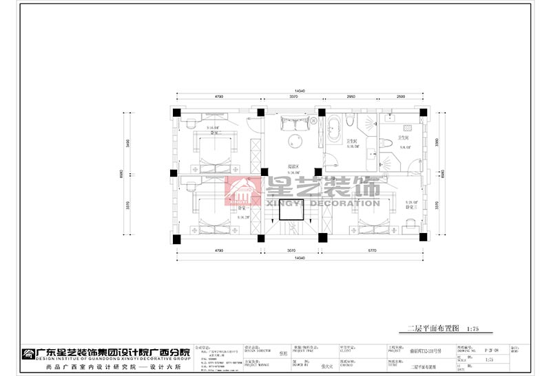
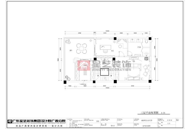
翡麗灣320平簡約歐式別墅裝修設計說明
簡約歐式風格沿襲古典歐式風格的主元素,融入了現代的生活元素。歐式的居室有的不只是豪華大氣,更多的是愜意和浪漫。通過完美的典線,精益求精的細節處理,帶給家人不盡的舒服觸感,實際上和諧是歐式風格的最高境界。
同時,歐式裝飾風格最適用于本套大面積房子,若空間太小,不但無法展現其風格勢氣,反而對生活在其間的人造成一種壓迫感。歐式風格很講究造型門的造型設計,包括房間的門和各種柜門,既要突出凹凸感,又要有優美的弧線,兩種造型相映感趣,風情萬種。當然,還要具有一定的美學素養,才能善用歐式風格,否則只會弄巧成拙。墻面用優質墻紙,地面材料以石材和地板為主。歐式客廳用家具和軟裝飾來營造整體效果以襯托豪華效果。布藝沙發組合有著絲絨的質感以及流暢的木質曲線,將傳統歐式家居的奢華與現代家居的實用性完美地結合。壁燈自然不可或缺,它被安置在空間的交匯處,又與一大幅色彩鮮艷的油畫相呼應,給敞開式的客廳提供了一個新的亮點。大面積的玻璃窗帶來了良好的采光,落地的窗簾很是氣派。在設計上追求空間變化的連續性和形體變化的層次感,室內多采用帶有圖案的壁紙、地毯、窗簾(簡約歐式風格窗簾的代表花型是大馬士革)、床罩、帳幔及古典裝飾畫,體現華麗的風格。
金源一品97平裝修案例
榮和大地179平裝修案例
教育路3號單位房125平裝修案例
龍光玖瓏湖200平裝修案例
鳴翠谷300平裝修案例
招商境界215平裝修案例
合景天峻300平裝修案例
廣源大都會190平裝修案例
提交信息,試看
人氣:11086
請必須填寫正確信息,以便我們更好的為您服務!