◎ 廣東省知名商標 ◎ 國家建筑裝飾工程設計專項甲級 ◎ 建筑裝修裝飾工程專業承包壹級
歡迎訪問星藝裝飾南寧公司官網























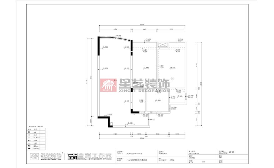
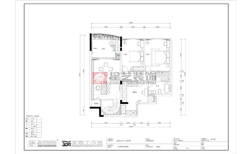
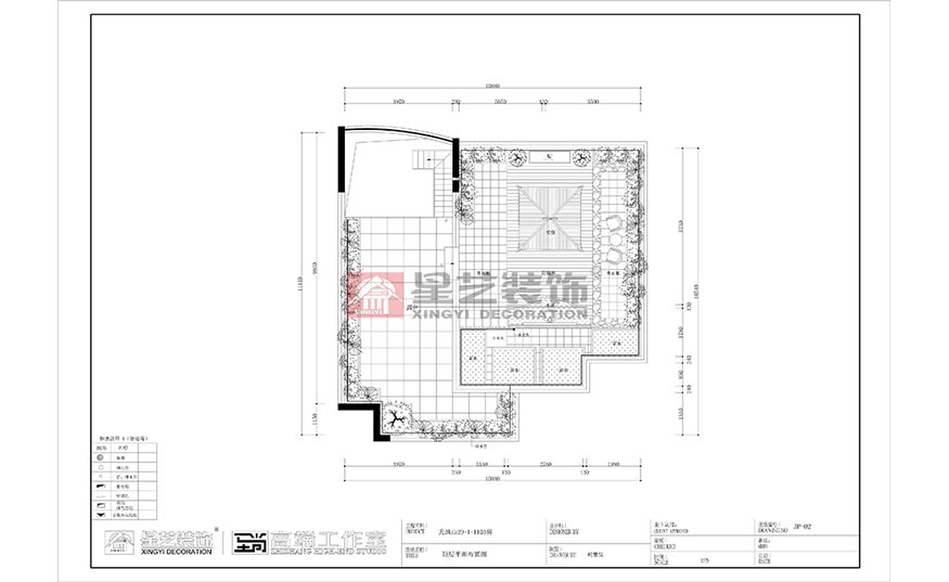
設計說明:本案位于南寧市天池山,前期與業主溝通后定位為中式風格,中式風格的代表是中國明清古典傳統。特點是對稱、簡約、樸素、格調雅致、文化內涵豐富,中式風格家居體現主人的較高審美情趣與社會地位。中式風格的特點,是在室內布置、線形、色調以及家具、陳設的造型等方面,以傳統文化內涵為設計元素,革除傳統家具的弊端,去掉多余的雕刻,糅合現代西式家居的舒適,根據不同戶型的居室,采取不同的布置,從而得到不同的效果。
金源一品97平裝修案例
榮和大地179平裝修案例
教育路3號單位房125平裝修案例
龍光玖瓏湖200平裝修案例
鳴翠谷300平裝修案例
招商境界215平裝修案例
合景天峻300平裝修案例
廣源大都會190平裝修案例
提交信息,試看
| 請輸入您的稱呼 |
| 請輸入您的手機號碼 |
| 請輸入您的樓盤名稱 |
為您提供小區戶型裝修效果圖參考!
人氣:11094