◎ 廣東省知名商標 ◎ 國家建筑裝飾工程設計專項甲級 ◎ 建筑裝修裝飾工程專業承包壹級
歡迎訪問星藝裝飾南寧公司官網





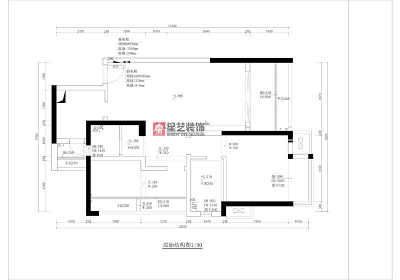
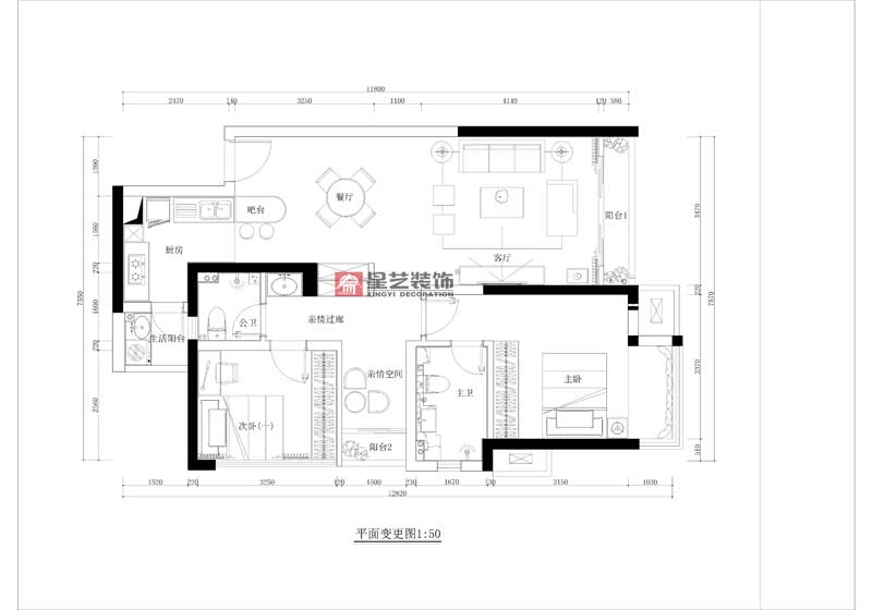
龍光君御華府88平裝修設計案例說明:
客戶是一對很有想法的海外僑胞夫婦,對生活品質很有要求。希望能在這套房子中打造一種輕松休閑的空間感。因為現在的社會步伐很快,稍有不慎你就會覺得OUT了。如此快的生活節奏,時間長了不免會覺得身心疲憊,想找一個簡單一點的地方,過著簡單的生活。也因為如此,現在很多年輕人在裝修的時候會選擇現代簡約風格,因為現代簡約風格采用的色調簡單,沒有太多的顏色裝飾,更不會給人一種色彩紛亂的感覺。在外面工作就已經“色彩紛呈”了,回到家何不享受那一刻的安寧?
金源一品97平裝修案例
榮和大地179平裝修案例
教育路3號單位房125平裝修案例
龍光玖瓏湖200平裝修案例
鳴翠谷300平裝修案例
招商境界215平裝修案例
合景天峻300平裝修案例
廣源大都會190平裝修案例
提交信息,試看
人氣:11094
請必須填寫正確信息,以便我們更好的為您服務!