◎ 廣東省知名商標 ◎ 國家建筑裝飾工程設計專項甲級 ◎ 建筑裝修裝飾工程專業承包壹級
歡迎訪問星藝裝飾南寧公司官網





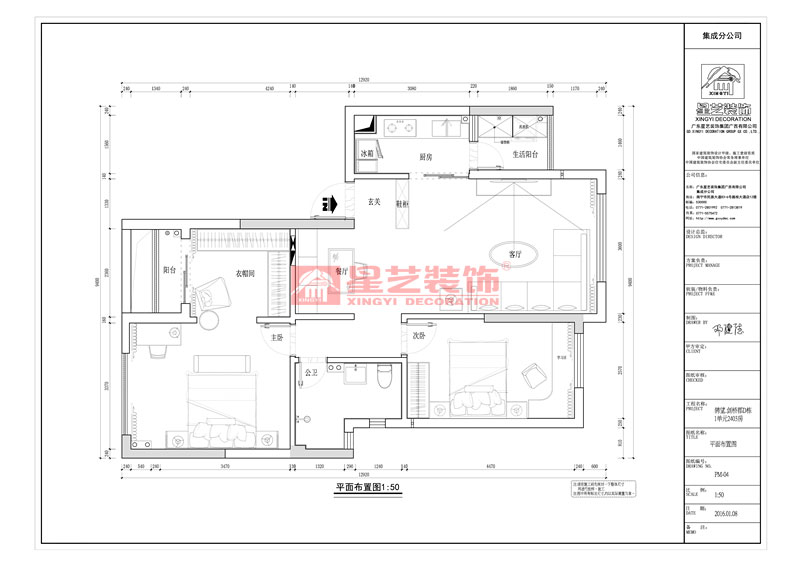
騁望劍橋郡85平裝修設計說明:干凈有力的色彩搭配,簡單利落的空間規劃,令人舒適的材質選擇,簡約之中充滿細節。
金源一品97平裝修案例
榮和大地179平裝修案例
教育路3號單位房125平裝修案例
龍光玖瓏湖200平裝修案例
鳴翠谷300平裝修案例
招商境界215平裝修案例
合景天峻300平裝修案例
廣源大都會190平裝修案例
提交信息,試看
人氣:11094
請必須填寫正確信息,以便我們更好的為您服務!