◎ 廣東省知名商標 ◎ 國家建筑裝飾工程設計專項甲級 ◎ 建筑裝修裝飾工程專業承包壹級
歡迎訪問星藝裝飾南寧公司官網




「維持視覺構面的明快簡潔,傾訴現代的語匯質韻。」跳脫量體侷限的收納思維,
由點入面預留空間的彈性餘裕。通透開敞的格局關係,搭佐沁白基底更顯明亮清晰,
注入品味獨到的美感意涵,藉由裝置軟件逐一調配彩度比重,循序漸進的語匯鋪述,
圍塑清新簡約的生活確幸。
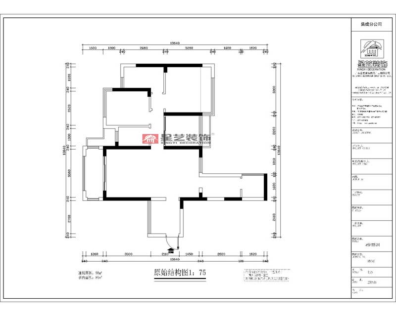
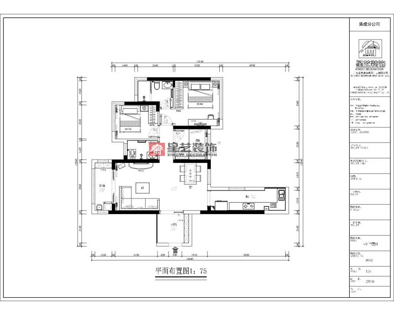
金源一品97平裝修案例
榮和大地179平裝修案例
教育路3號單位房125平裝修案例
龍光玖瓏湖200平裝修案例
鳴翠谷300平裝修案例
招商境界215平裝修案例
合景天峻300平裝修案例
廣源大都會190平裝修案例
提交信息,試看
人氣:11105
請必須填寫正確信息,以便我們更好的為您服務!