◎ 廣東省知名商標 ◎ 國家建筑裝飾工程設計專項甲級 ◎ 建筑裝修裝飾工程專業承包壹級
歡迎訪問星藝裝飾南寧公司官網




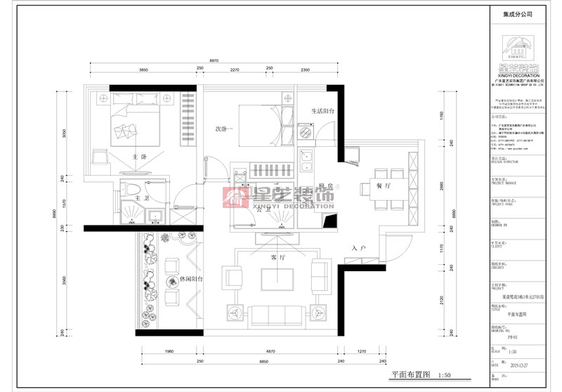
客戶年齡28歲左右,工薪階層,但很注重生活品質,喜歡現代風格,所以在設計把空間利用最大化,從使用功能、顏色、材質、配飾等方面都的達到了業主滿意的空間效果,經濟實用、簡潔大方、美觀舒適
萊茵鷺湖86平二居室現代簡約裝修效果案例
金源一品97平裝修案例
榮和大地179平裝修案例
教育路3號單位房125平裝修案例
龍光玖瓏湖200平裝修案例
鳴翠谷300平裝修案例
招商境界215平裝修案例
合景天峻300平裝修案例
廣源大都會190平裝修案例
提交信息,試看
人氣:11106
請必須填寫正確信息,以便我們更好的為您服務!