◎ 廣東省知名商標 ◎ 國家建筑裝飾工程設計專項甲級 ◎ 建筑裝修裝飾工程專業承包壹級
歡迎訪問星藝裝飾南寧公司官網




美式風格遵循輕松休閑的感覺,以奶茶色調的墻面為主,搭配適當的輔助光設計和墻面的點綴造型讓整個空間生動起來,一家人其樂融融的用餐時,看著照片墻上留下的美好回憶,這就是對家幸福溫馨美好的體現
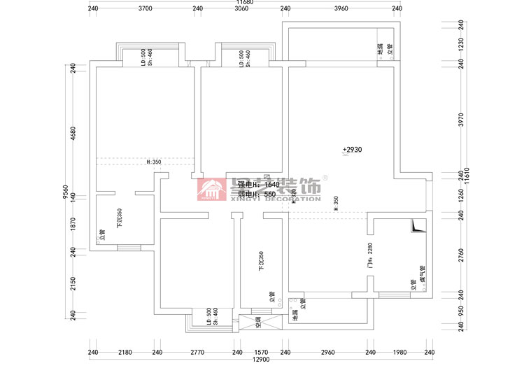
龍光君御華府115平美式裝修設計
金源一品97平裝修案例
榮和大地179平裝修案例
教育路3號單位房125平裝修案例
龍光玖瓏湖200平裝修案例
鳴翠谷300平裝修案例
招商境界215平裝修案例
合景天峻300平裝修案例
廣源大都會190平裝修案例
提交信息,試看
人氣:11106
請必須填寫正確信息,以便我們更好的為您服務!