◎ 廣東省知名商標 ◎ 國家建筑裝飾工程設計專項甲級 ◎ 建筑裝修裝飾工程專業承包壹級
歡迎訪問星藝裝飾南寧公司官網




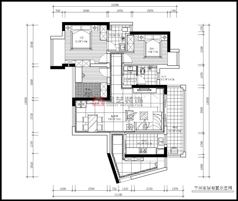
簡約不簡單的設計風格,從顏色的選擇、用材用料,映射出一種非常質樸的生活理念。客餐廳的空間不大,選用了純凈素樸的色調,局部的鏡面增加空間感,弱光源的燈帶設計讓整個家里更溫馨,并且視覺上拉高了空間感,不規則的入戶空間用地面的瓷磚做出造型打造出線條感,搭配上簡單大方的家具,整個空間悠然自在。
龍光君御華府125平現代簡約裝修案例
金源一品97平裝修案例
榮和大地179平裝修案例
教育路3號單位房125平裝修案例
龍光玖瓏湖200平裝修案例
鳴翠谷300平裝修案例
招商境界215平裝修案例
合景天峻300平裝修案例
廣源大都會190平裝修案例
提交信息,試看
人氣:11107
請必須填寫正確信息,以便我們更好的為您服務!