◎ 廣東省知名商標 ◎ 國家建筑裝飾工程設計專項甲級 ◎ 建筑裝修裝飾工程專業承包壹級
歡迎訪問星藝裝飾南寧公司官網









簡約風格設計就是本著“生活品位,空前質量”前提,倡導新簡約主義風格,展現健康人居魅力空間。
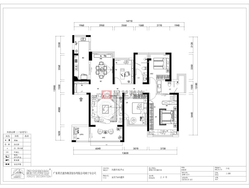
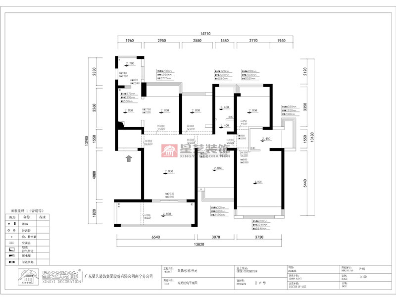
鳳景灣150平現代簡約案例
本案業主為中年人事,都在單位上班,有一個女兒準備讀高中,房子裝修之后主要是一家三口居住,業主希望房子可以裝修得干凈明亮的感覺,同時呢考慮到是以后還會再買房子,所以目前的這套房子就在裝修上的花費業主覺得不需要裝得太奢華,因此與客戶溝通之后對此房子的裝修定位為現代簡約風格。
此戶型為大三房的戶型外加贈送陽臺面積,房子的景觀陽臺比較大也比較長,其他臥室空間比較方正好用,此戶型的不足之處是廚房、餐廳比較小。將廚房與生活陽臺之間打通,使得廚房往外擴空間變大,冰箱也可以放在了廚房里面,這樣餐廳位置就可以寬敞舒適了很多。整體設計采用暖色調為主,頂面設計結合客戶要求使用風管機采用簡單的走邊疊級設計,地磚也使用較為淡雅的玉石紋路的拋釉磚,電視背景墻也是仿大理石兩個色彩的錯落搭配組合時尚感很強,將原來的景觀陽臺一分為二之后,部分區域作為與客廳共同使用,為公共區域打造了一個休閑舒適的空間,十分愜意。
金源一品97平裝修案例
榮和大地179平裝修案例
教育路3號單位房125平裝修案例
龍光玖瓏湖200平裝修案例
鳴翠谷300平裝修案例
招商境界215平裝修案例
合景天峻300平裝修案例
廣源大都會190平裝修案例
提交信息,試看
人氣:11094
請必須填寫正確信息,以便我們更好的為您服務!