◎ 廣東省知名商標 ◎ 國家建筑裝飾工程設計專項甲級 ◎ 建筑裝修裝飾工程專業承包壹級
歡迎訪問星藝裝飾南寧公司官網





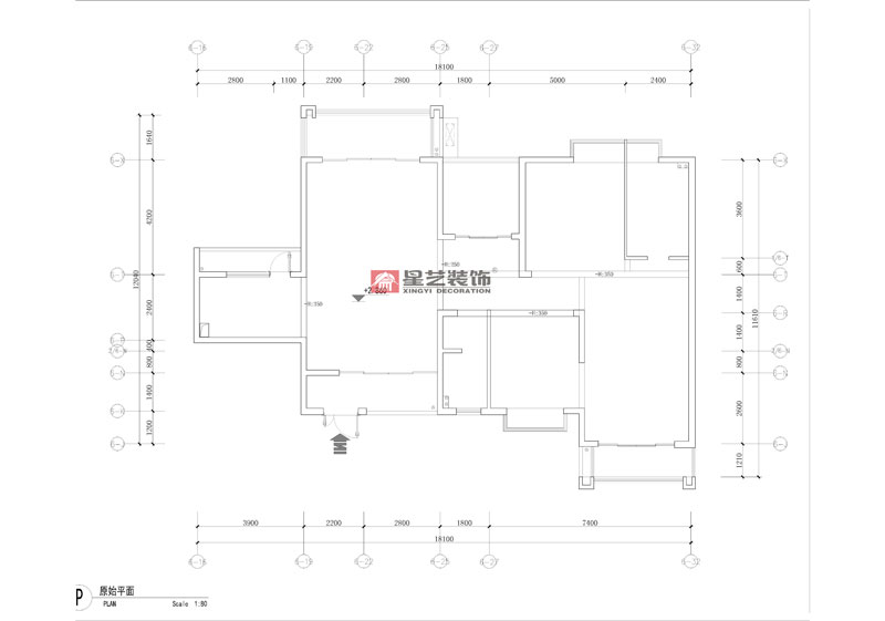
廣源國際社區170平戶型裝修設計說明
中式風格在家居布局上講究方正、對稱的布局形式,講究整體的布局和風水格調高雅,造型樸素優美,色彩濃厚而成熟。中式風格的裝飾主要體現在傳統的家具,再輔以字畫、盆景,陶瓷、古玩、屏風等裝飾品,最求的是一種修身、齊家的生活境界。在整體的色彩選擇上以莊重的紅為主,體現中式文化深沉、厚重的底蘊。中式風格在整體的布局上雖然最求對稱莊重,而在細節上有更傾向于自然情趣、花鳥魚蟲等精細雕刻,取其美好的寓意來表現人們對美好生活的追求。
金源一品97平裝修案例
榮和大地179平裝修案例
教育路3號單位房125平裝修案例
龍光玖瓏湖200平裝修案例
鳴翠谷300平裝修案例
招商境界215平裝修案例
合景天峻300平裝修案例
廣源大都會190平裝修案例
提交信息,試看
人氣:11104
請必須填寫正確信息,以便我們更好的為您服務!