◎ 廣東省知名商標 ◎ 國家建筑裝飾工程設計專項甲級 ◎ 建筑裝修裝飾工程專業承包壹級
歡迎訪問星藝裝飾南寧公司官網










早上兩人可以愜意喝咖啡,吃豐盛的早餐;呼吸新鮮空氣,鍛煉身體的同時(瑜珈或單車)可以順便追劇;簡單收拾房間,洗衣晾曬整理衣物,收拾花園,畫畫、拼布、插花、烘焙、整理菜譜、喝下午茶、看雜志報紙、聽音樂,房間彌漫宜人的香氣。晚上可以窩在沙發里煲劇、看書,各自單獨閱讀空間,上網。泡澡、皮膚護理、頭發護理、聽音樂、香氛。
這是業主對自己理想生活的描述,怎樣在設計里面融入生活,在生活里面融入設計,是我在這套作品里面想表達的。
沒有繁瑣的造型,沒有絢麗的顏色,讓空間結構靈動起來,讓實用功能極致起來,讓美景穿插起來,讓材質返璞歸真起來,一切看起來是那么精致又那么隨心所欲!
本案的設計思想:靈氣、唯美、獨特、韻味、靜心、雅致。
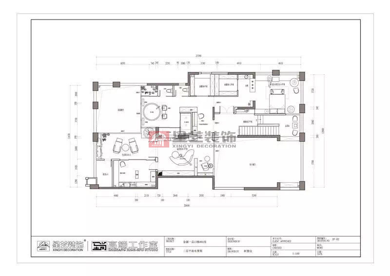
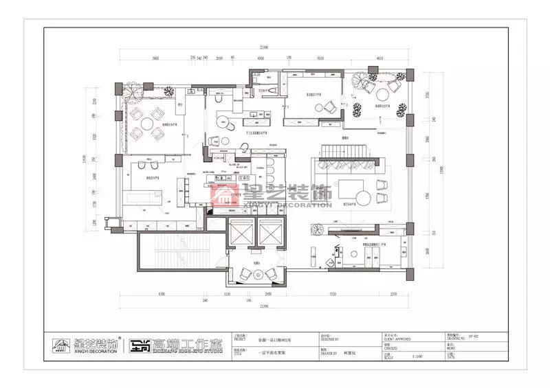
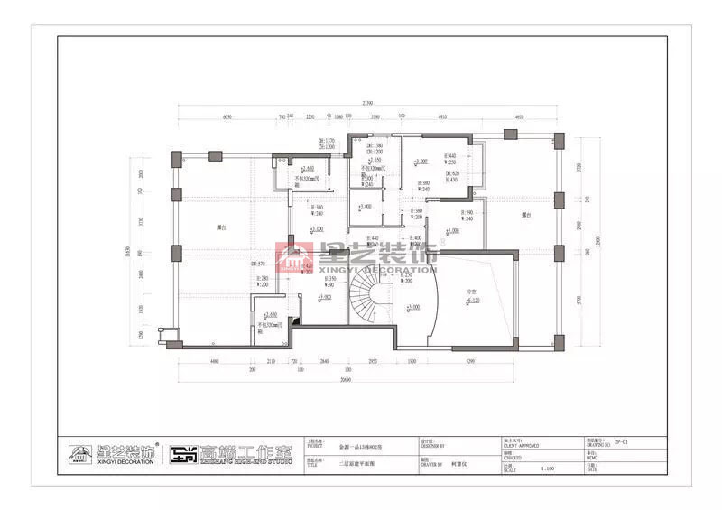
金源一品550平現代簡約裝修案例
金源一品97平裝修案例
榮和大地179平裝修案例
教育路3號單位房125平裝修案例
龍光玖瓏湖200平裝修案例
鳴翠谷300平裝修案例
招商境界215平裝修案例
合景天峻300平裝修案例
廣源大都會190平裝修案例
提交信息,試看
人氣:11093
請必須填寫正確信息,以便我們更好的為您服務!