◎ 廣東省知名商標 ◎ 國家建筑裝飾工程設計專項甲級 ◎ 建筑裝修裝飾工程專業承包壹級
歡迎訪問星藝裝飾南寧公司官網








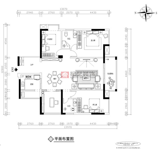
瑞和家園140平裝修案例
本案位于江南區,環境比較安靜。業主是一位比較年輕的男業主,但是比較傳統的中式感覺。入戶首先給客戶設計一個天方地圓的設計理念。讓人一進門就讓人進入到一個有韻味的中式文化環境。電視背景墻左右兩邊的造型運用柱子的竹節造型延伸做兩組軟包的造型。寓意節節高升。整體的色調用淺黃色貫穿整個空間。地面和墻面的空間用大理石瓷磚打造出一個比較高貴大氣的空間。再在頂面就用墻布的柔和做點綴。使得整個居家環境剛柔并進。典雅又有中式韻味。
金源一品97平裝修案例
榮和大地179平裝修案例
教育路3號單位房125平裝修案例
龍光玖瓏湖200平裝修案例
鳴翠谷300平裝修案例
招商境界215平裝修案例
合景天峻300平裝修案例
廣源大都會190平裝修案例
提交信息,試看
人氣:11104
請必須填寫正確信息,以便我們更好的為您服務!