◎ 廣東省知名商標 ◎ 國家建筑裝飾工程設計專項甲級 ◎ 建筑裝修裝飾工程專業承包壹級
歡迎訪問星藝裝飾南寧公司官網








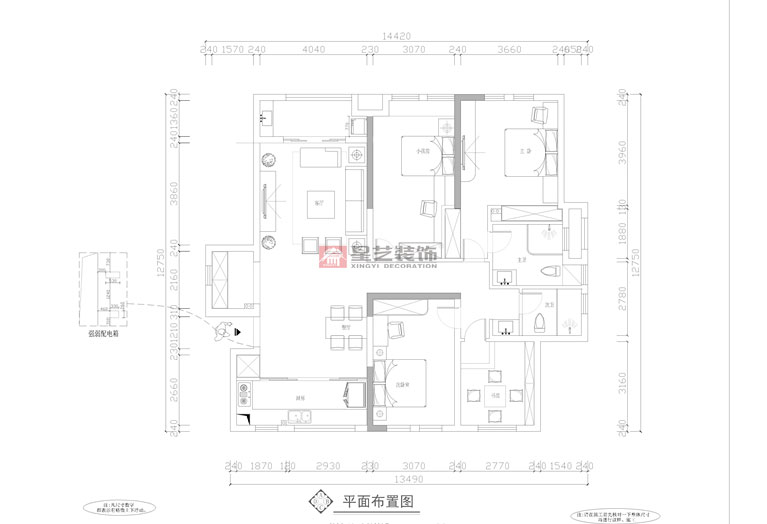
本案位于五像新區體育中心對面,業主是一對剛生寶寶的年輕夫妻,對于新的事物接收能力比較強。本案入門原結構比較狹窄。所有在考慮方案時,設計師把原來的生活陽臺改造成獨立的廚房,入門正對的位置做為一個餐廳兼入戶背景。這個入戶背景運用的是從底到頂的木地板上墻造型,把整體的視覺拉高,就可以解決入門矮小的問題。墻面用灰色的墻布把整體空間推入一個高雅的狀態。 電視背景墻用一整面簡潔高雅的雅士白大理石作為主體把北歐風表現得淋漓盡致
瀾灣九里140平裝修設計
金源一品97平裝修案例
榮和大地179平裝修案例
教育路3號單位房125平裝修案例
龍光玖瓏湖200平裝修案例
鳴翠谷300平裝修案例
招商境界215平裝修案例
合景天峻300平裝修案例
廣源大都會190平裝修案例
提交信息,試看
人氣:11106
請必須填寫正確信息,以便我們更好的為您服務!