◎ 廣東省知名商標 ◎ 國家建筑裝飾工程設計專項甲級 ◎ 建筑裝修裝飾工程專業承包壹級
歡迎訪問星藝裝飾南寧公司官網


















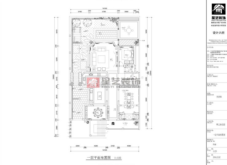
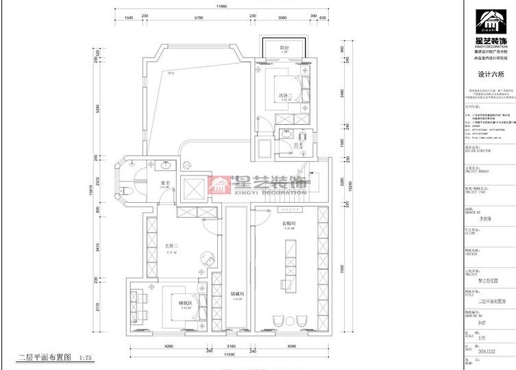
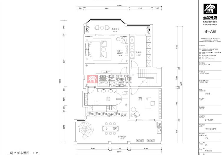
主材用料:仿古磚,文化磚,橡木地板,水曲柳面板掃色,石膏線等
本案和甲方溝通了近一年時間,甲方是快退休的金融家,喜歡攝影和聽音樂,所以對負一樓影音室娛樂室要求高,一樓也增加了一個很大的開放式書房工作室,滿足他每天關注電腦和對各種信息的搜索。同時也不忘兼顧大小兩個女主人的需求,滿滿的衣帽間和大大的臥室和浴室,花園也處理得花榮樹綠,共同營造給大家一個溫馨的家
夢之島花園500平別墅裝修案例賞析
金源一品97平裝修案例
榮和大地179平裝修案例
教育路3號單位房125平裝修案例
龍光玖瓏湖200平裝修案例
鳴翠谷300平裝修案例
招商境界215平裝修案例
合景天峻300平裝修案例
廣源大都會190平裝修案例
提交信息,試看
人氣:11104
請必須填寫正確信息,以便我們更好的為您服務!