◎ 廣東省知名商標 ◎ 國家建筑裝飾工程設計專項甲級 ◎ 建筑裝修裝飾工程專業承包壹級
歡迎訪問星藝裝飾南寧公司官網









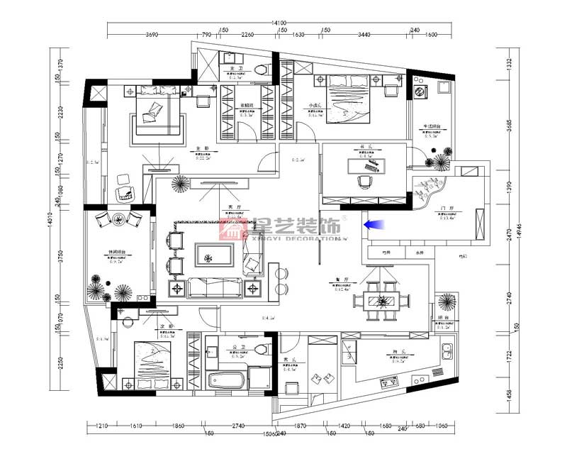
本案定位為歐式風格。營造溫馨舒適、高貴時尚的情調是本案的主題。
我們設計的重心是:在滿足功能需求的前提下,合理的對空間進行重新分化,進而達到增加臥室滿足住戶居住需求的目的,為客戶打造出一個理想的溫馨家園。
騁望怡景灣185平裝修效果賞析
金源一品97平裝修案例
榮和大地179平裝修案例
教育路3號單位房125平裝修案例
龍光玖瓏湖200平裝修案例
鳴翠谷300平裝修案例
招商境界215平裝修案例
合景天峻300平裝修案例
廣源大都會190平裝修案例
提交信息,試看
人氣:11093
請必須填寫正確信息,以便我們更好的為您服務!